舞台燈光係統設計解決方案
一、設計依據
JGJ-57-2000/J67-2001《劇場建築設計規範》
GB/T50314-2000《智能建築設計標準》
JGJ/T16-92《民用建築電器設計規範》
WH-0204-1999《舞台燈具光學質量的測試與評價》
GB7000.14-2000《通風式燈具安全要求》
GB/T50311-2000《建築與建築群綜合布線工程設計規範》
GB/T50312-2000《建築與建築群綜合布線係統工程驗收規範》
GB50259-96《電氣裝置安裝工程電氣照明裝置施工及驗收規範》
GB50169-92《電氣安裝工程接地裝置施工質量驗收規範》
GBJ54-83《低壓配電裝置及線路設計規範》
GB50052-95 《供配電係統設計規範》
GB50054-95 《低壓配電設計規範》
GB50034-2004《建築照明設計標準》
JGJ/T16-92《民用建築電氣設計規範》
GB15734-1995《電子調光設備無線電騷擾特性限值及測量方法》
二、設計原則
多功能廳舞台燈光係統嚴格按照可靠的、高質的、先進的、靈活的、全(quan)麵(mian)的(de)設(she)計(ji)思(si)想(xiang)。在(zai)進(jin)行(xing)係(xi)統(tong)設(she)計(ji)時(shi),主(zhu)要(yao)設(she)備(bei)選(xuan)用(yong)國(guo)內(nei)先(xian)進(jin)產(chan)品(pin),整(zheng)體(ti)方(fang)案(an)充(chong)分(fen)利(li)用(yong)最(zui)新(xin)研(yan)究(jiu)成(cheng)果(guo)和(he)設(she)計(ji)理(li)念(nian),並(bing)遵(zun)循(xun)以(yi)下(xia)的(de)設(she)計(ji)原(yuan)則(ze):
1、係統的先進性、科學性及經濟性
多功能廳舞台燈光係統的設置是:技術先進、係統科學、穩定可靠、功能強大、使用方便、易於維修。
1.1、先進性
在zai舞wu台tai燈deng光guang係xi統tong的de設she計ji中zhong,充chong分fen考kao慮lv了le燈deng光guang技ji術shu未wei來lai不bu斷duan發fa展zhan升sheng級ji的de需xu求qiu和he係xi統tong的de可ke擴kuo展zhan能neng力li與yu兼jian容rong性xing,盡jin可ke能neng在zai不bu增zeng加jia硬ying件jian的de前qian提ti下xia,滿man足zu將jiang來lai因yin演yan出chu規gui模mo增zeng大da等deng原yuan因yin所suo需xu要yao的de燈deng光guang擴kuo容rong和he技ji術shu升sheng級ji。采cai用yong的de先xian進jin技ji術shu:具有強大控製、編輯功能及擴展功能的電腦控製台;穩定可靠、抗幹擾性強的智能調光矽箱;國內著名的專業舞台常規燈具、智能效果燈具;
1.2、科學性
多功能廳的燈光控製係統是采用標準DMX512信號的設計,科學地把控製信號直接送到每一個受控點,使得舞台燈光係統具有良好的發展潛力和開放性,以適應高速有效的信號傳輸、係統擴展和不斷地技術升級的需要。使整個燈光係統不僅擁有技術的先進性,還有係統的科學性。
1.3、經濟性
設計中,將營運管理及運行成本因素滲透到每一個設計環節之中。選用技術先進、節能、環保的係統設備,尤其是大量選用低功率的LED專業舞台燈具、三(san)基(ji)色(se)熒(ying)光(guang)管(guan)和(he)長(chang)壽(shou)命(ming)鹵(lu)鎢(wu)光(guang)源(yuan)燈(deng)具(ju),其(qi)特(te)點(dian)是(shi)高(gao)效(xiao)低(di)能(neng),高(gao)亮(liang)度(du)低(di)溫(wen)度(du)長(chang)壽(shou)命(ming)。同(tong)時(shi),為(wei)舞(wu)台(tai)管(guan)理(li)搭(da)建(jian)一(yi)個(ge)現(xian)代(dai)化(hua)的(de)硬(ying)件(jian)平(ping)台(tai),從(cong)而(er)實(shi)現(xian)高(gao)效(xiao)、低成本的營運目標。
2、係統完整性與實用性
舞台燈光工藝設計完全突破了傳統的設計思路,結合、xishoulexiandaidengguangyishufazhandelitiyanshikongjianbianhuaxingshijitedian,dengguangxitongshejiwulunzaipingmianbujushang,haishizailitidejiegoushang,xingchengtongyiwanzhengdefangan,yizhishiyinggezhongleixingbuguangshejifangan,bingqieliuyoudaliangwanshandeshejijiekou,zhexieshejidejiekoubingbuyingxiangzhengtishejifangandejinduhekuozhan,zhuyaoshizhenduishiyongguochengzhongwutaidengguangxitongshejijinhoumianlindejigewenti:
A、燈光係統設備不斷更新問題;(即可持續發展的空間和深度問題)
B、滿足各類表演形式的不斷需求;(即平麵布局和立體空間的局限性)
C、完整性充分體現在燈光係統功能的實現、燈光設備的配置、不同設備的互聯、信號傳輸格式兼容等方麵。
3、係統可擴展性和持續發展性
方案所設計網絡化燈光係統是一個開放式的平台,係統的結構充分考慮到了日後的硬件和軟件的可持續升級和發展。整個燈光係統方案設計、設備的配置、性能達標並保證係統;具有多重安全、穩定、可靠的係統保障措施;以及日後係統的升級需求。
4、安全、可靠性
調(tiao)光(guang)設(she)備(bei)作(zuo)為(wei)燈(deng)光(guang)係(xi)統(tong)的(de)控(kong)製(zhi)中(zhong)心(xin),本(ben)身(shen)的(de)穩(wen)定(ding)和(he)調(tiao)光(guang)控(kong)製(zhi)係(xi)統(tong)的(de)可(ke)靠(kao)性(xing)將(jiang)直(zhi)接(jie)影(ying)響(xiang)到(dao)整(zheng)個(ge)係(xi)統(tong)的(de)正(zheng)常(chang)運(yun)行(xing)和(he)演(yan)出(chu)效(xiao)果(guo)。因(yin)此(ci),配(pei)置(zhi)穩(wen)定(ding)可(ke)靠(kao)的(de)調(tiao)光(guang)設(she)備(bei)是(shi)必(bi)須(xu)考(kao)慮(lv)的(de)前(qian)提(ti)。係(xi)統(tong)將(jiang)設(she)有(you)DMX輸入/輸出接口,以兼容所有品牌的調光台、矽箱等新、舊設備的接入。所有調光控製台輸入、輸出(I\0)接口具有光電隔離保護功能,調光台、調光矽箱全部線路板采用表麵焊接技術(SMT)生產。各種信號接口采用優質產品,並具有熱拔插功能。
5、設備的通用性
燈光控製係統可以兼容的控製信號:DMX512,確保世界上絕大部分的數字控製台,調光櫃,電腦搖頭燈,LED燈,掃描燈,換色器等數字設備都可以穩定地在此燈光係統上運行。
三、實施說明
先(xian)進(jin)合(he)理(li)的(de)燈(deng)光(guang)係(xi)統(tong)配(pei)置(zhi),搭(da)載(zai)具(ju)有(you)現(xian)代(dai)科(ke)技(ji)最(zui)高(gao)水(shui)平(ping)的(de)燈(deng)具(ju)和(he)器(qi)材(cai),是(shi)保(bao)證(zheng)舞(wu)台(tai)燈(deng)光(guang)照(zhao)明(ming)係(xi)統(tong)總(zong)體(ti)設(she)計(ji)目(mu)標(biao)得(de)以(yi)實(shi)現(xian)的(de)前(qian)提(ti)條(tiao)件(jian)。燈(deng)具(ju)、燈位的合理配置是充分體現燈光設計水平的重要標誌。舞台燈光燈位布置為全方位立體分布,麵光、側光、頂光、逆光、追光等區位構成全方位布光陣列,舞台各部位均有布光點,杜絕死區,可靈活多變按需組合。
1、麵光設計配置
麵光作為舞台正麵主光,zhuyaoyongyuzhaoliangwutaiqianbuquyu,duiwutaishangdelingdaohuobiaoyanzheqidaozhengmianzhaomingdezuoyong,gongrenwuzaoxingyonghuoshiwutaishangdewutichengxianlitixiaoguo。zaishejifanganzhongyaogenjutouguangjulijinxingbuguang,baozhengmianguangdengtoushedexiaoguodadao,guangbanjunyun、照度一致。
2、頂光、逆光設計配置
頂(ding)光(guang)設(she)在(zai)舞(wu)台(tai)上(shang)空(kong),燈(deng)具(ju)吊(diao)掛(gua)在(zai)燈(deng)吊(diao)杆(gan)下(xia)邊(bian),其(qi)作(zuo)用(yong)是(shi)對(dui)舞(wu)台(tai)縱(zong)深(shen)的(de)表(biao)演(yan)空(kong)間(jian)進(jin)行(xing)必(bi)要(yao)的(de)照(zhao)明(ming),頂(ding)光(guang)包(bao)括(kuo)順(shun)光(guang)和(he)逆(ni)光(guang),可(ke)在(zai)同(tong)一(yi)燈(deng)杆(gan)上(shang)重(zhong)疊(die)布(bu)置(zhi),燈(deng)具(ju)可(ke)根(gen)據(ju)演(yan)出(chu)需(xu)要(yao)配(pei)置(zhi)。第(di)一(yi)道(dao)頂(ding)光(guang)與(yu)麵(mian)光(guang)相(xiang)銜(xian)接(jie)照(zhao)明(ming)主(zhu)舞(wu)台(tai)區(qu),銜(xian)接(jie)時(shi)注(zhu)意(yi)人(ren)物(wu)的(de)高(gao)度(du);第二道至最後一道光可根據功能需要向舞台後直投、也可垂直向下投射、也可作為逆光向前投射;從而加強舞台人物造型及景物空間的照明。前後排光相銜接,使舞台表演區獲得比較均勻的色彩和亮度。
3、側光設計配置
側(ce)光(guang)的(de)作(zuo)用(yong)是(shi)從(cong)舞(wu)台(tai)的(de)側(ce)麵(mian)造(zao)成(cheng)光(guang)源(yuan)的(de)方(fang)向(xiang)感(gan),為(wei)舞(wu)台(tai)上(shang)的(de)領(ling)導(dao)或(huo)演(yan)員(yuan)塑(su)造(zao)層(ceng)次(ci)及(ji)立(li)體(ti)感(gan)。可(ke)以(yi)作(zuo)為(wei)照(zhao)射(she)人(ren)物(wu)麵(mian)部(bu)的(de)輔(fu)助(zhu)照(zhao)明(ming),並(bing)可(ke)加(jia)強(qiang)布(bu)景(jing)層(ceng)次(ci),對(dui)人(ren)物(wu)和(he)舞(wu)台(tai)空(kong)間(jian)環(huan)境(jing)進(jin)行(xing)造(zao)型(xing)渲(xuan)染(ran)。投(tou)光(guang)的(de)角(jiao)度(du)、方向、距離、燈具種類、功率等因素都會造成各種不同的側光效果。側光的射距由近到遠,投光角度由近至遠,變化極多,來自單側或雙側的造型光,可以強調、突出側麵的輪廓,適合表現浮雕、renwudengjuyoutijigandexiaoguo。danceguangkebiaoxianchuyinyangduibijiaoqiangdexiaoguo。shuangceguangkeyibiaoxianjuyougexinghuatediandejiabanguang,danxuyaotiaozhengzhengmianfuzhuguangyuceguangdeguangbicainenghuodebijiaowanshandezaoxingxiaoguo。
4、天排光設計配置
天(tian)排(pai)燈(deng)是(shi)以(yi)散(san)射(she)投(tou)光(guang)燈(deng)具(ju)由(you)上(shang)向(xiang)下(xia),向(xiang)舞(wu)台(tai)天(tian)幕(mu)的(de)上(shang)半(ban)部(bu)分(fen)投(tou)光(guang)和(he)渲(xuan)染(ran)色(se)彩(cai)的(de)燈(deng)光(guang),成(cheng)排(pai)燈(deng)具(ju)均(jun)勻(yun)地(di)擺(bai)在(zai)舞(wu)台(tai)天(tian)幕(mu)前(qian)用(yong)來(lai)俯(fu)射(she)天(tian)幕(mu),表(biao)現(xian)地(di)平(ping)線(xian)、水平線、日落等;通常與地排燈配合使用,使色彩變化更為豐富,燈具采用單燈組合使用。
5、地排光配置說明
yutianpaidengxiangfan,dipaidengshiyisanshetouguangdengjuyouxiaxiangshang,xiangwutaitianmudexiabanbufentouguanghexuanransecaidedengguang,tongchangyutianpaidengpeiheshiyong,shisecaibianhuagengweifengfu,dengjucaiyongdandengzuheshiyong。
6、追光燈設計配置
根據光學成像及變焦原理設計的燈具,具有可改變光圈的大小、色彩、明暗、xushidenggongneng,yanchuzhonganzhuangzaitezhidezhijiashangzhuisuiyanyuanyidongdetongshijiaqiangduiqizhaomingliangdu,tigaoguanzhongdezhuyili,keyishezhizaiyanchujuchangkongjiandeduozhongweizhi,shixianduiyanyuanbanshen、全身、遠距離、小範圍的局部照明效果。有時也可運用追光表現抽象、虛幻的舞台情節。
7、其他效果設計配置
為了更好的表現演出效果,模擬自然界的真實場景還分別在舞台上設置了數碼煙機、頻閃燈、泡泡機等效果設備。
四、舞台燈光運用場景
舞台燈光主要運用在多功能廳、宴會廳、劇場劇院、戶外演出、酒吧等大型帶演出的場所。
1、多功能廳:
2、宴會廳:
3、劇場劇院:

4、戶外演出:
5、酒吧:
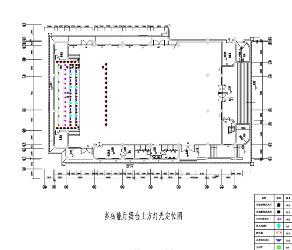
五、點位設計
舞台燈光係統解決方案-舞台燈光係統|舞台燈光|多功能廳燈光|宴會廳燈光首選聲際電聲,xidian509.cn
電話:
郵箱:
網址:http://xidian509.cn/
地址:深圳市龍崗區橫崗深坑路147號
掃描二維碼添加微信